Biurowiec na sprzedaż, Pułtuski, Pułtusk

Numer zlecenia SOHEBE970
8 500 000 PLN 2 833 za m2
Powierzchnia:
3 000.0 m2
Liczba pokoi:
5
Piętro:
/0
Struktura:
Beton komórkowy
Rok budowy:
2024
Stan:

Opis

Na sprzedaż budynek użytkowy w centrum miasta – doskonała lokalizacja i potencjał inwestycyjny

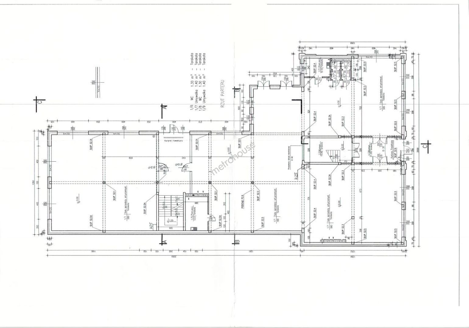
Oferujemy na sprzedaż nowoczesny budynek użytkowy o łącznej powierzchni 3000 m², składający się z pięciu kondygnacji: piwnicy, parteru, dwóch pięter oraz poddasza użytkowego. Nieruchomość położona w prestiżowej lokalizacji, przy głównej ulicy w samym sercu miasta, zapewnia łatwy dostęp do wszystkich kluczowych punktów i komunikacji miejskiej.

Kluczowe atuty nieruchomości:

Przestronne wnętrza z dużymi oknami, zapewniającymi doskonałe doświetlenie pomieszczeń.
Tarasy na wyższych kondygnacjach z pięknym widokiem na panoramę miasta.
Możliwość zagospodarowania przestrzeni pod parking podziemny, co stanowi duży atut w centralnej lokalizacji.
Miejsce na przestronne windy, umożliwiające łatwy dostęp do wszystkich kondygnacji.
Ogrzewanie podłogowe, zapewniające komfort i efektywność energetyczną.
Wejście bezpośrednio z ulicy, co umożliwia swobodny dostęp zarówno dla klientów, jak i pracowników.


Budynek stanowi doskonałą inwestycję, zarówno ze względu na swoją funkcjonalność, jak i strategiczną lokalizację. Zapraszam do kontaktu i umówienia się na prezentację, aby szczegółowo zapoznać się z potencjałem tej wyjątkowej nieruchomości.


For sale: a commercial building in the city center – an excellent location with investment potential

We are offering for sale a modern commercial building with a total area of 3000 m², consisting of five floors: a basement, two floors, and a usable attic. The property is located in a prestigious area, on the main street in the heart of the city, providing easy access to all key points and public transport.

Key property features:

Spacious interiors with large windows, ensuring excellent natural light.
Terraces on the upper floors with beautiful views of the city skyline.
Potential for developing an underground parking area, which is a significant advantage in this central location.
Modern, spacious elevators providing easy access to all floors.
Underfloor heating for comfort and energy efficiency.
Direct street-level access, offering convenience for both clients and employees.
Recommended uses: The building is ideal for various commercial purposes, such as:

A gym or fitness center
A nursing home or medical facility
An educational institution
A service facility
This property represents a great investment, both due to its functionality and strategic location. We invite you to contact us and schedule a viewing to fully explore the potential of this exceptional property.


Czy wiesz, że możemy przygotować dla Ciebie prezentację on-line nieruchomości? Skontaktuj się z naszym Agentem i zapytaj o szczegóły.

Pomimo, iż Doradcy Metrohouse przykładają szczególną staranność do rzetelnego prezentowania informacji o nieruchomości, nie zawsze jest możliwa weryfikacja wszystkich danych przekazanych od osób trzecich. Niniejsza prezentacja oferty nie jest ofertą w rozumieniu Kodeksu Cywilnego i ma charakter wyłącznie informacyjny.

W pobliżu

Kredyt mieszkaniowy

Szacunkowa miesięczna rata kredytu:
0 PLN / miesiąc
30 lat

Obecnie Credipass nie prowadzi obsługi kredytowej w tym oddziale. Szukasz kredytu? Napisz na: kredyty@metrohouse.pl. Pomożemy Ci w uzyskaniu finansowania zakupu!

Pułtuski, Pułtusk
 Cena:  8 500 000 PLN
 Powierzchnia:   3 000.0  m2
 Liczba pokoi:  5

Marta Szczepankowska

Doradca
Bg